 | Blockrahmen massiv
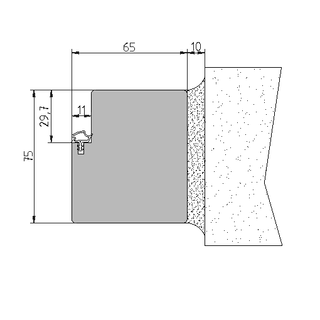
GARANT-Fertigblockrahmen, furnierter/beschichteter Massivträger, Querschnitt 75/65 mm (Stärke/Breite), für Montage in der Leibung, fertig oberflächenbehandelt (ausgenommen Streichfähig), Kartonverpackung.
- Schließblech: Winkelschließblech silberfarbig
- Bandaufnahmen: 2 x 2 Klemmnuss V 9100 mit Rahmenteil V 3400 WF vernickelt
- Dichtung: Dichtungsprofil lose beigelegt
- Nebenleistungen: verschiedene Schließblechvarianten
- Sonderkonstruktionen: 2-flg. Blockrahmen, geschosshohe Windfangblockrahmen
- Lieferbare Oberflächen: Ahorn, Buche, Streichfähig, Weißeiche Natur, Weißlack Spezial, CePaL
|